7

Oak Park, Narraghmore, Co.Kildare

Site. Guide Price. €235,000. Viewing Strictly by appointment

  • Property Ref: 763

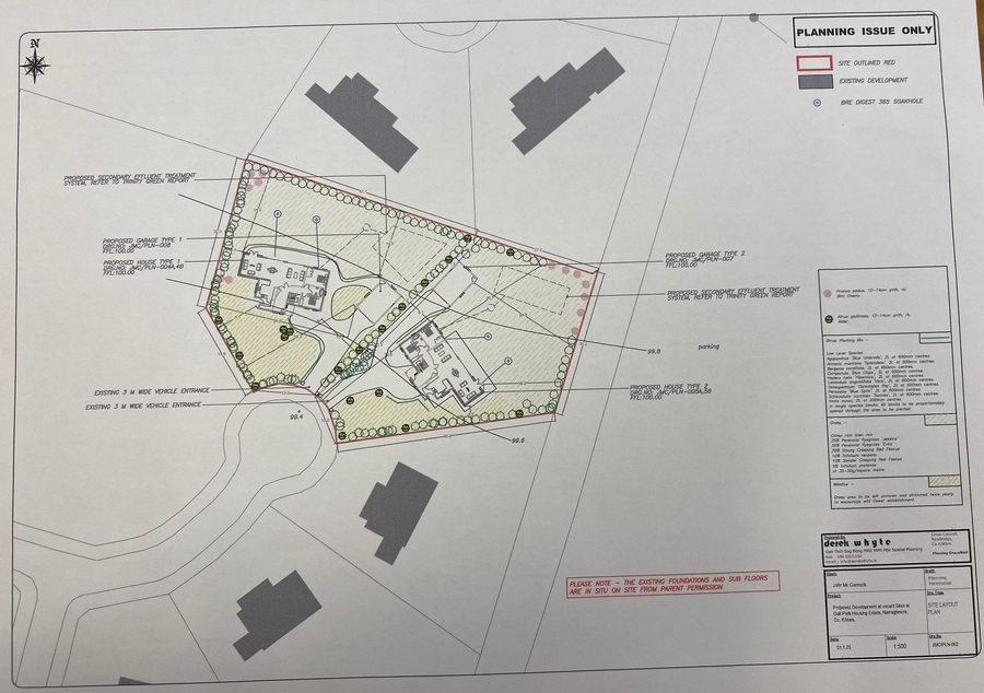
Oak Park, Narraghmore, Co. Kildare

An exceptional opportunity to acquire two premium residential sites with full planning permission and foundations already in place for architect-designed luxury homes.

Planning permission has been granted for two substantial detached one-and-a-half storey residences, each with garage and full services connection. The foundations and subfloor structures have already been completed, offering a significant saving in both time and construction cost.

Each property has been thoughtfully designed to provide:
• Spacious 4/5 bedroom accommodation
• Dedicated home office
• Large open-plan kitchen/living/dining space
• Sun-room and utility areas
• Ground floor bedrooms ideal for long-term living

Located within the established Oak Park development in Narraghmore, the sites benefit from a peaceful rural setting while remaining highly accessible:
• 12 minutes to Kilcullen & Athy
• 20 minutes to Naas & Newbridge
• 8 minutes to the M9 motorway

This is a rare opportunity to secure a build-ready site with planning certainty, ideal for self-builders or investors seeking a high-quality residential project.

PROPERTY ACCOMMODATION
  • Each property has been thoughtfully designed to provide:
  • • Spacious 4/5 bedroom accommodation
  • • Dedicated home office
  • • Large open-plan kitchen/living/dining space
  • • Sun-room and utility areas
  • • Ground floor bedrooms ideal for long-term living
FEATURES
  • Well proportioned sites
  • Build-ready sites with planning in place
  • Significant time and cost savings already achieved
  • Ideal for self-builders or investors
  • Opportunity to complete high-spec homes to your own finish
  • Strong demand area for quality residential property